Пн-пт: 08:00—18:30
whatsapp telegram vkontakte email

Устройство голубятни и необходимый инвентарь

Устройство голубятни и необходимый инвентарь

Голубятня играет большую роль в жизни голубей. От ее правильного устройства зависит развитие голубей, успешное выведение их потомства, сохранение здоровья птиц и многое другое.

Устройство голубятни

Прежде всего следует определиться с местом расположения будущей голубятни. Она должна быть достаточно большой, чтобы голубям было в ней просторно, через окна в нее должны свободно проникать солнечные лучи, но при этом в голубятне не должно быть сквозняков. Голубям постоянно необходимы чистый свежий воздух и определенная влажность помещения.

Лучшим местом для будущей голубятни будет чердак. Как правило, там всегда сухо, хорошая вентиляция. Благодаря такому расположению голубятни птицы сразу же попадают на крышу, с которой открывается хороший обзор. Преимуществом устройства голубятни на чердаке является и то, что голуби будут взлетать уже с некоторой высоты, а не с земли. Все эти моменты очень важны для голубей, особенно летных пород.

Голубятни можно разместить на домах плоской крышей, выступах, подставках любой высоты (в зависимости от местности), фундаменте (не менее 25 см от земли), можно разместить в 1 или 2 этажа.

Голубятню рекомендовано делать из следующих материалов.

  1. Дерево. В деревянной голубятне следует оштукатурить стены или обшить их фанерой и обязательно прошпаклевать стыки между листами.
  2. Кирпич. В кирпичной голубятне также необходимо тщательно оштукатурить потолок и стены.
  3. Металл. Металлическую голубятню необходимо обшить изнутри досками, а потом сверху фанерой.

Утепленный вариант голубятни можно сделать, построив его с двойными стенами и проложив между ними утеплитель.

Если у голубятни железная крыша, изнутри потолок следует обшить теплоизоляционным материалом. Если этого не сделать, зимой внутри голубятни будет слишком холодно, а летом жарко.

Температура внутри голубятни должна быть:

› зимой – не ниже 5–7 °C;

› летом – не выше 20 °C.

Основные требования к размерам голубятни:

› 1 пара голубей мелкого и среднего размера должна занимать не менее 0,5 м3;

› 1 пара голубей крупного размера – до 1 м3;

› в 1‑м отделении голубятни должно находиться не более 10–15 пар голубей (лучше, если голуби будут одной породы или похожих пород).

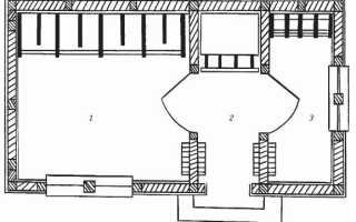
В голубятне рекомендуется сделать несколько отделений (рис. 73). Первое отделение предназначается для молодых голубей (рожденных в текущий год). Два отделения потребуются для раздельного содержания голубей в зимний период (отдельно для самцов и самок). Кроме того, одно отделение следует использовать как хозяйственное, предназначенное для хранения зерна, минерального корма и необходимого инвентаря.

Рис. 73. План питомника для голубей:

1 – отделение для разведения; 2 – подсобное хозяйство; 3 – отделение для молодняка

Если голубятня состоит из 2 отделений, то их используют следующим образом: в 1‑м размещают старых голубей, во 2‑м – молодых голубей и хозяйственное помещение (шкафы или закрытые коробки).

В зимнее время эти 2 помещения используют для раздельного размещения самцов и самок.

Крышу голубятни можно сделать как односкатную, так и двухскатную. Это не имеет особого значения. Удобнее всего уклон крыши делать 1:10 по отношению к ширине голубятни.

Железную крышу следует покрыть несколькими слоями рубероида (2–3 слоя). Деревянную крышу можно покрыть шифером, рубероидом и железом.

Разрабатывая проект будущей голубятни, следует учесть все необходимые размеры.

  1. Высота голубятни. Рекомендуемая высота голубятни составляет 1,8–2 м.
  2. Размер дверей. Высота двери обычно равна 150–180 см, ширина – 55–70 см.
  3. Размер окон. Площадь окон следует делать равной 1/10 части площади пола.
  4. Размер летков для выхода голубей. Размер летков зависит от содержащихся в голубятне пород голубей. Чаще всего делают высоту летков 10–25 см, ширину – 10–20 см. Рекомендовано делать 2 летка. Высота летков от пола зависит от породы и размера голубя. Для летных пород летки можно расположить на высоте 1–1,5 м, для декоративных и мясных – 15–20 см от пола.

Некоторые голубеводы делают регулируемые летки для своих голубей. Такие летки очень удобны в эксплуатации, а для спортивных голубей они необходимы. Сделать их самостоятельно достаточно легко. В окно монтируется специальная вставная рама, которая состоит из незакрепленных снизу прутьев (качающихся). Эти прутья рекомендуется делать из толстой проволоки. Также в раме должен быть специальный переставляемый ограничитель.

Для голубей, особенно спортивных пород, можно оборудовать специальный приемник. Он представляет собой клетку, которую во время тренировок и сезона соревнований прикрепляют к летку.

Вернувшийся с состязаний голубь помещается в приемник, из которого его легко можно достать и снять контрольное кольцо.

В остальное время голуби могут легко входить в голубятню через приемник и также легко выходить из нее.

Иногда на летках устанавливают ограничители. Если в голубятне 2 летка, на одном из них делают ограничитель на вход, на другом – на выход.

Важным будет и расположение окон голубятни. Лучше всего, если ее фасад будет находиться с южной или юго‑восточной стороны. Это необходимо для поддержания здоровья птиц, особенно молодых, так как солнечные лучи, проникающие в окна, оказывают благотворное влияние на голубей.

Будущий питомник должен быть приспособлен для содержания голубей в зимнее время. В этом случае особое значение имеет то, сколько голубей и какие их породы будут находиться в голубятне.

В голубятню следует провести электричество. Это необходимо для того, чтобы контролировать продолжительность светового дня, а также состояние голубей в любое время. В голубятне лучше всего сделать двойные двери:

› 1‑ю (наружную) – из досок или металла;

› 2‑ю (внутреннюю) – из сетчатого материала – решетки.

В летнее время днем можно держать наружную дверь открытой. Это способствует лучшей освещенности и вентиляции помещения.

Хорошо вентилируемое помещение имеет первостепенное значение для здоровья голубей. На небольшой высоте от пола (около 10–15 см) следует сделать приточное отверстие, которое необходимо закрыть решеткой. На потолке или стене как можно выше должно находиться вытяжное отверстие.

Все вентиляционные окна необходимо закрывать в зимнее время на дверки, которые должны как можно плотнее прилегать к стене, сквозняков быть не должно.

Кроме естественной вентиляции, можно сделать и искусственную. Это гарантированно поможет избежать сырости. Необходимо помнить, что размещать окна на противоположных стенах не стоит, так как это также способствует возникновению сквозняков.

Полы голубятни рекомендуется делать из досок, плотно прилегающих друг к другу. Это делается для облегчения уборки внутри голубятни.

В зависимости от породы разводимых голубей голубятни можно делать с вольером или без него. Для спортивных пород голубей вольеры необязательны. Достаточно будет сделать перед входным летком прилетную доску.

Для декоративных и мясных пород обязательно нужно сделать голубятню с вольером. Находясь в нем, голуби адаптируются в новой голубятне, привыкают к окружающей их местности. В вольере птицы могут прогуливаться, есть зеленый корм (его можно посадить прямо в вольере или специальных ящиках), купаться и греться на солнце.

Вольеры можно устанавливать на крыше голубятни, подставках определенной высоты или на грунте.

Форма и размеры вольера не очень важны и зависят преимущественно от фантазии владельца, наличия материала для строительства и проекта голубятни.

У каждого голубя в голубятне должно быть свое место как для сидения, так и для создания гнезда, что особенно важно во время кладки яиц и последующего выведения потомства.

Чтобы это осуществить, в голубятне делают специальные насесты. При этом необходимо учитывать породы голубей. Насесты делают из брусков, ширина которых должна быть равна 2–4 см. Их необходимо подвесить на высоту примерно 30–40 см от потолка. Бортики насеста можно сделать из рейки толщиной 2–2,5 см.

Насесты (рис. 74) прежде всего необходимы для тех пород голубей, у которых сильно оперенные конечности или опущены крылья (вислокрылые). Если у таких пород голубей не будет насестов, это может привести к тому, что у них испортится или испачкается оперение.

Рис. 74. Насесты

Для племенных голубей делают специальные полки с гнездами или насесты. Их необходимо установить так, чтобы голубям было удобно создать там гнездо и вывести потомство. Изготовлять эти полки следует из досок длиной 70–80 см, шириной и высотой 30–40 см. Вместо полок можно сделать и отдельные ящики тех же размеров, которые устанавливают друг на друга.

В голубятне может быть несколько рядов полок в несколько ярусов. Они должны быть следующих размеров:

› для голубей небольшого размера длина, ширина и высота полок должны быть 30 см;

› для голубей большого размера длина полки – 70–80 см, ширина и высота – 40 см.

Для пород голубей с сильнооперенными ногами или вислокрылых следует прикрепить к стенкам (между полок) бортик шириной 3–4 см и толщиной 2–2,5 см (рис. 75). Отступ от полки должен быть 1,5–2 см. Этот бортик могут использовать в качестве насеста голуби любых пород.

Рис. 75. Насесты‑полки (размеры даны в см):

а – размеры; б – последовательность сборки

Рис. 75 (продолжение). Насесты‑полки

Внутреннее оборудование (полки, насесты) рекомендовано делать разборными. Это делается для того, чтобы при необходимости можно было легко его разобрать и почистить.

Инвентарь голубятни и уход за ним

На насестах необходимо установить гнезда для голубей. Они могут быть нескольких разновидностей. Чаще всего для их создания используют прямоугольный ящик. В зависимости от породы голубей определяют размеры этого ящика.

Чаще всего делают гнезда следующих размеров: длина сторон – 20–25 см, высота – 4–7 см.

Дно гнезда лучше всего сделать из фанеры, а боковые стороны из рейки. Некоторые голубеводы рекомендуют делать гнезда из гипса. Их делают круглой формы: диаметр – 20–25 см, высота – 6–7 см.

На дне гнезда нужно сделать небольшое углубление, так чтобы внутренняя сторона дна гнезда была вогнутая, а наружная плоская.

Деревянные гнезда делают по тому же принципу. В том случае, если на гнезде появляются трещины или щели, их необходимо тут же зашпаклевать и покрасить.

В голубятне обязательно должны быть специальные кормушки для голубей (рис. 76, а, б).

Рис. 76. Кормушки (размеры даны в см):

а, б – для зерна

Для выкармливания птенцов (особенно мясных пород) применяют специальные кормушки‑автоматы.

Минеральные корма не следует смешивать с зерном, их кладут в отдельные кормушки (рис. 76, в).

Рис. 76 (продолжение). Кормушки (размеры даны в см):

в – для минеральных кормов

В зависимости от количества и породы голубей определяют размер и количество кормушек.

Поить голубей следует из специально отведенных для этого поилок (рис. 77). Там всегда должна быть чистая вода, поэтому менять ее нужно как можно чаще. Поилки некоторых форм предотвращают купание в них голубей, а также частое засорение питьевой воды.

Рис. 77. Поилки:

а, б, в – простые; г, д – вакуумные

В автопоилках, особенно большого объема, следует менять воду при каждом кормлении. Если в поилки попадет помет больного голубя, вода станет источником заражения.

Существуют специальные вакуумные поилки. Зимой их использовать нельзя, так как вода в них будет замерзать.

Самый удобный вариант поилки легко сделать самостоятельно. Такую поилку можно использовать без ограничений в любое время года. Делают такие поилки из пустых консервных банок емкостью 0,4 и 0,85 л.

Сбоку банки емкостью 0,85 л делают 3 прорези. Во избежание травм голубей острые края консервных банок следует загнуть или тщательно сточить. Воду наливают в другую банку емкостью 0,4 л. Первая банка будет служить хорошим прикрытием. Такие поилки используют ежедневно, создавая из них блоки, которые ставят на поддоны из невысоких банок с большим диаметром. Поддоны необходимы для того, чтобы избежать сырости в голубятне.

Голубям круглый год, особенно в зимний период, необходим зеленый корм. Чтобы обеспечить голубей этим кормом (ячмень, овес), его следует выращивать в специально отведенных для этого ящиках. Размер, количество и форму этих ящиков голубеводы определяют самостоятельно в зависимости от потребностей голубей. Зимой ящики с зеленым кормом убирают из вольера в голубятню.

Для хранения минеральных кормов и зерна следует выделить несколько емкостей (ящиков, шкафов и т. д.). Следует следить за тем, чтобы в этих емкостях всегда было сухо, также следует закрыть корм от грызунов.

Голубям необходимо регулярное купание. Им нужны специальные ванны, также можно самостоятельно сделать противни с бортиками высотой 4–8 см.

В зимний период на пол голубятни можно настелить подстилку. Это могут быть крупные опилки, песок, мелкие ветки, солома, сено. Наличие такой подстилки значительно упрощает уборку голубятни.

Правильно организованная уборка имеет важное значение для здоровья голубей. Убирать голубятню следует ежедневно, а более тщательно – 1–2 раза в неделю. Генеральную уборку и дезинфекцию необходимо делать каждую весну и осень.

Перед уборкой необходимо убрать из голубятни кормушки, поилки, ванны и т. д. Также следует выпустить голубей. Вначале обметают потолок и стены, подметают пол. Затем стены белят известью. После этого следует тщательно вымыть пол, через 1–3 ч (когда высохнет пол) в голубятню вносят и расставляют чистые поилки, кормушки и т. д. В самом конце следует запустить в голубятню голубей.

Поилки и кормушки следует периодически (1–2 раза в месяц) обдавать кипятком, дезинфицировать, мыть, а затем сушить.

В случае загрязнения гнезд необходимо сменить подстилку. Под новую нужно подсыпать тертый табачный лист, полынь, древесную золу или пиретрум.

Это делается в качестве профилактики паразитарных заболеваний.

Каждому голубеводу для уборки голубятни и содержания голубей необходимы грабли большие и маленькие, веник, лопата, совок, ведро, скребки, метла, ступка (для приготовления минеральных кормов), канистра (для питьевой воды) и сито.

Также любому голубеводу понадобится специальное приспособление для переноски голубей (ящик, чемодан и т. д.).

В каждой голубятне обязательно должна быть аптечка, в которой должны находиться все нужные лекарства и инструменты. К ним относятся пинцет, шприц (1–2 см3) с набором игл, скальпель, ножницы, бинты (разной ширины), лейкопластырь, нитки (шелковые), вата, левомицетин, поливитамины, марганцовокислый калий, борная кислота, энтеросептол.

Название книги – Голуби

Инвентарь и оборудование голубятни

Голубятни для спортивных голубей имеют дополнительное оборудование. Леток представляет собой четырехугольную раму, с трех сторон (с двух боковых и верхней) обтянутую проволочной сеткой. Леток укрепляется снаружи голубятни к выходному окну. Приполок (пол летка) спереди выступает за раму летка. Свободная часть приполка служит как бы ступенькой, на которую садятся прилетающие голуби. Размеры летка зависят от количества голубей, населяющих голубятню, и рассчитаны на свободный вход и выход голубей. На передней стенке рамы летка вместо сетки укреплены качающиеся металлические палочки на расстоянии 4 см одна от другой. Палочки свободно подвешены на металлическом стержне диаметром 3 мм, который продет в отверстия, просверленные в верхней части палочек. Концы стержня наглухо закреплены на раме летка. Внизу выходного отверстия летка установлен еще один стержень, который препятствует движению палочек. Этот стержень можно закреплять снаружи или изнутри летка. Если он расположен с внутренней стороны, то голуби могут выйти из летка, но не войдут обратно. Закрепленный снаружи, он дает голубю войти внутрь голубятни. Палочки летка можно использовать одновременно в двух направлениях для вылета и входа, перегородив рамку палочек пополам. Паровочные ящики. Размер паровочного ящика 70x50x40 см. Паровочный ящик легко превратить в гнездовой, разделив его перегородкой и поставив гнездо-вкладыш. Каждой паре голубей отводится один гнездовой ящик. Ящик ставится вдоль стен, длина его 80 см, высота 35 см, ширина 40 см. Перегородка высотой 15 см делит ящик на два отделения, в каждое из которых ставят гнездо. Это необходимо для того, чтобы дать возможность голубке положить яйца при находящихся в ящике птенцах предыдущего вывода. Входное отверстие ящика закрывается деревянной дверцей, одновременно заменяющей приполочек. Наружную стенку можно делать решетчатой или наполовину глухой, так как голубки лучше насиживают в полумраке. Для удобства обслуживания голубей передняя стенка ящика должна свободно открываться. Ящики располагаются в несколько ярусов. На рисунке изображены четыре таких ящика. У одного из них снята наружная стенка. Гнездо. Лучшее гнездо — деревянный вкладыш, выточенный из цельного куска дерева (ольхи). Такие гнезда теплы, прочны, их легко чистить. Диаметр гнезда 25 см, высота 8 см, выемка глубиной 4—4,5 см, выем дна с обратной стороны 0,5 см. Щели замазывают вареным лаком с примесью лизол-креолина. Прочностью отличаются гипсовые гнезда, изредка применяются алебастровые и проволочные. Насесты. Неправильно устроенный насест вызывает искривление костей у птиц. Птицы держатся во время сна на насестах, захватывая их пальцами. Ранее уже говорилось о сложном строении мускулатуры задней конечности, обеспечивающей птице — поддержание равновесия на насесте во время сна. Размер жерди насеста должен быть таким, чтобы птица охватывала ее с нормальным напряжением, необходимым для захвата опоры. При этом грудь птицы будет приподнята над жердью. На тонкой, гладкой и совершенно круглой жерди птица вынуждена приседать как можно ниже, чтобы сильнее сжать пальцы, вследствие чего ее грудь будет опираться на жердь, а это может вызвать судороги пальцев, изъязвление груди, а у молодых голубей — искривление грудной кости, что считается крупным пороком для племенных особей. Кроме того, на таком насесте птице трудно поддерживать равновесие. Поэтому насесты следует делать трех- или четырехугольными с шириной, равной половине длины раскрытых пальцев лапы (примерно 2,5— 3,5 см). Насесты следует располагать горизонтально и не очень высоко от пола. Кормушка. Основное требование к кормушке — предохранение корма от загрязнения. Величина кормушки зависит от количества голубей. Поилка. Из многих видов усовершенствованных поилок лучшими считаются пневматические, они вполне гигиеничны и удобны. Вода, поступающая в водопойную чашку, ограждена от засорения предохранительной крышкой. Сама чашка устроена так, что голуби не могут в ней купаться. Вода в поилке сохраняется свежей, чистой и прохладной довольно долго, потому что голубь пользуется только той водой, которая стекает в чашку. При устройстве поилок следует избегать цинковой посуды. Купалка. Известно, что голуби имеют привычку купаться, особенно в жаркое время и во время линьки. Голуби часами лежат в прохладной воде, с наслаждением переворачиваясь с одной стороны на другую и поднимая от удовольствия кверху крылья. Частое купание необходимо для здоровья, сохраняет опрятность голубя и помогает в борьбе с насекомыми. Размеры купалки зависят от количества голубей. Высота купалки с отлого отогнутыми краями 10 см. Форма краев предотвращает излишнее разбрызгивание воды. Транспортировочный ящик (корзина). Необходим для перевозки голубей во время дрессировок, должен быть достаточно просторным. Транспортировочные ящики обычно плетут из лозы. Верх ящика и отверстие для питья затягивают толстой проволокой. Расстояния между прутьями проволоки в отверстии для питья должны быть такими, чтобы голуби могли в них просунуть голову. Поилку подвешивают снаружи. Дно с внутренней стороны следует обшить холстом, чтобы голуби не могли поранить себе ноги о концы прутьев. Для посадки и вылавливания голубей служит откидывающаяся дверца. Одна из боко¬вых сторон ящика открывается для выпуска голубей при дрессировке. У голубевода должно быть два таких ящика ‘ меньшего размера, они используются для отсадки небольшого количества голубей. Подстилка в голубятне. В качестве подстилки могут служить торф, крупный песок, дубовое корье. Подстилка должна равномерно распределяться по всему полу, собранный помет ежедневно во время уборки выносят из голубятни, так как он быстро загнивает. Песок перед употреблением просеивают через металлическую решетку с отверстиями диаметром 6 мм. Рекомендуется во избежание пылеобразования при уборке голубятни песок предварительно опрыскивать слабым раствором креолина. Подсобным инвентарем в голубятне служат: железный скребок, совок, сито, корзина или оцинкованное ведро для склада помета, лейка, метла, частые грабли и термометр.

Ссылка на основную публикацию
Похожее